Firenze – Liberta’ 5 vani con balconi e garage

Via Lorenzo il Magnifico, Quartiere 5, Firenze, Toscana, 50129, Italia
In Vendita Euro 630.000,00 - 5 vani, Appartamento, Residenziale
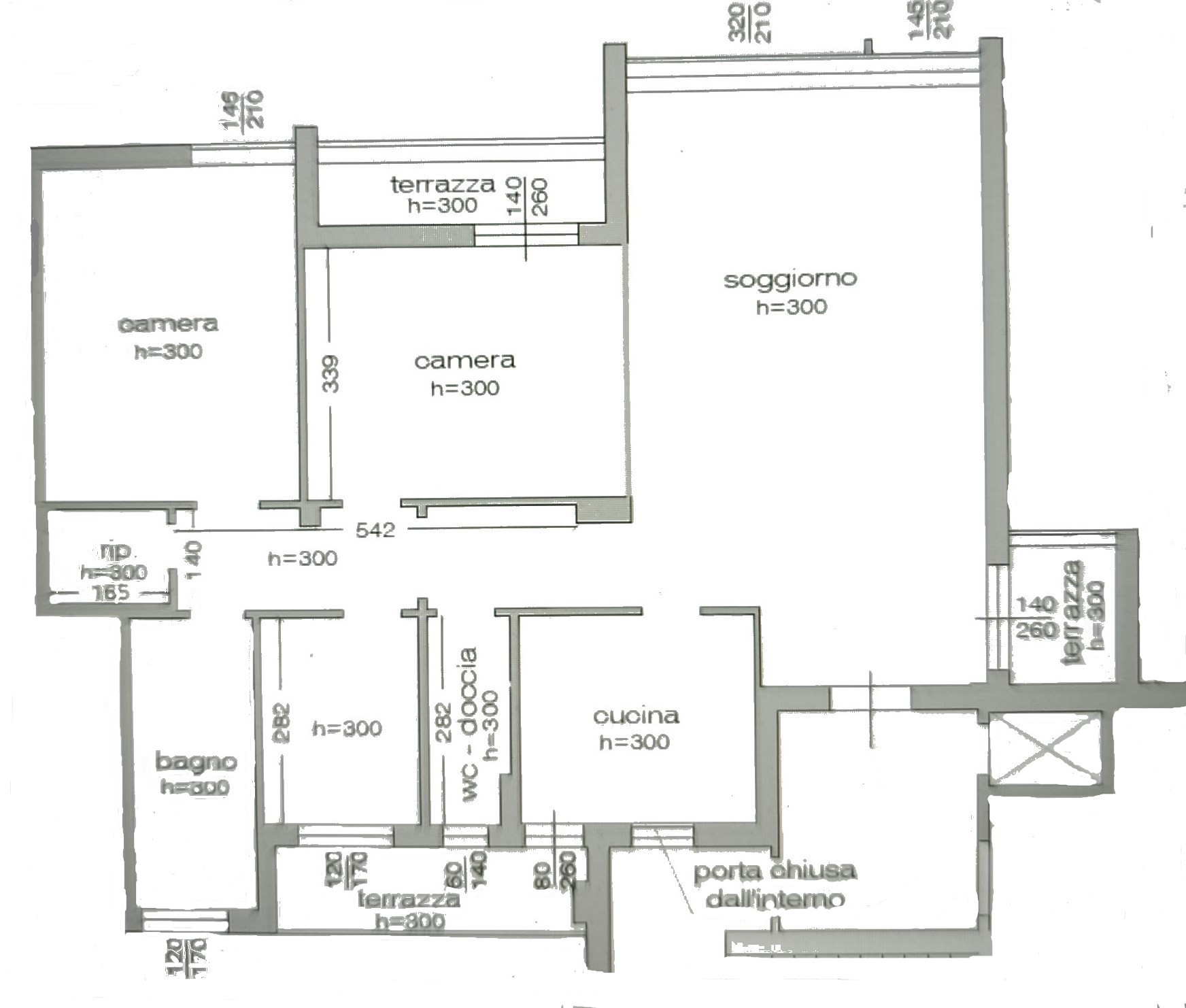
D179 115 mq 2 Camere da letto 1 Bagno 1 Garage 1970 Anno di costruzione

Piazza Libertà/Fortezza, ad un passo dal centro, in una delle strade più signorili di Firenze, disponiamo di bellissimo e luminosissimo appartamento ottimamente ristrutturato ed accessoriato. Siamo al quinto piano di una palazzina moderna servita da ascensore. Entrando nell’ampia zona giorno troviamo una grande sala con una parete completamente finestrata e balcone, la cucina semiabitabile con balcone ed un bagno con finestra; la zona notte è ben definita e comprende due camere matrimoniali, di cui una con balcone coperto, uno studio o terza camera, ed il secondo ampio bagno con finestra, oltre ad un comodo ripostiglio. Completano la proprietà una cantina ed un box auto adatto per due macchine di piccole dimensioni oppure per una sola grande e moto. L’immobile, che ricade in categoria A/1, ha la rendita catastale piuttosto contenuta; questo fa in modo che l’ IMU non sia troppo gravoso. La casa è stata perfettamente ristrutturata poco più di 10 anni fa e si presenta in condizioni perfette anche per quanto riguarda gli infissi e l’impianto privato di condizionamento/pompa di calore. Il termo è centralizzato e le spese condominiali, oltre al riscaldamento, comprendono anche l’acqua calda sia d’estate che d’inverno.

 

             

  • 5° PIANO CON ACENSORE: PALAZZO MODERNO DI 6 PIANI
  • SPESE CONDOMINIALI INCLUSO RISCALDAMENTO: EURO 300,00

Prestazioni energetiche

  • Classe energetica: F
  • Prestazioni energetiche: 185
  • A+
  • A
  • B
  • C
  • D
  • E
  • F
  • G

Dettaglio costi

    Agente Immobiliare Granelli Casa&Case

    Contatto

    Caricamento...

    Calcolo mutuo

    10 Anni Fisso, 2% Interesse
    • Principal and Interest

    Lascia un commento

    Il tuo indirizzo email non sarà pubblicato. I campi obbligatori sono contrassegnati *

    diciannove − 1 =

    Immobiliare Granelli Casa&Case